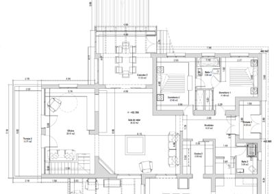
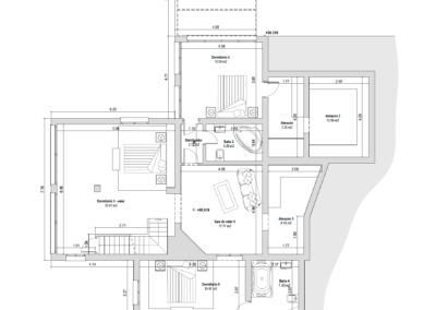
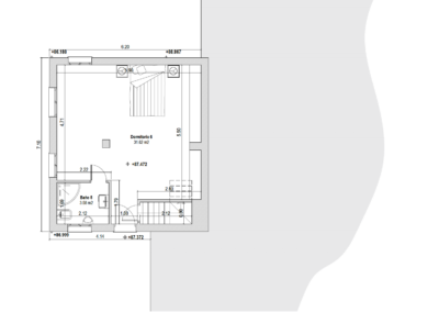
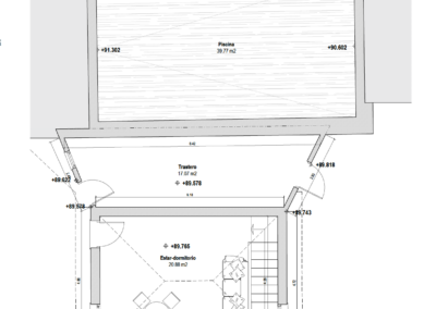
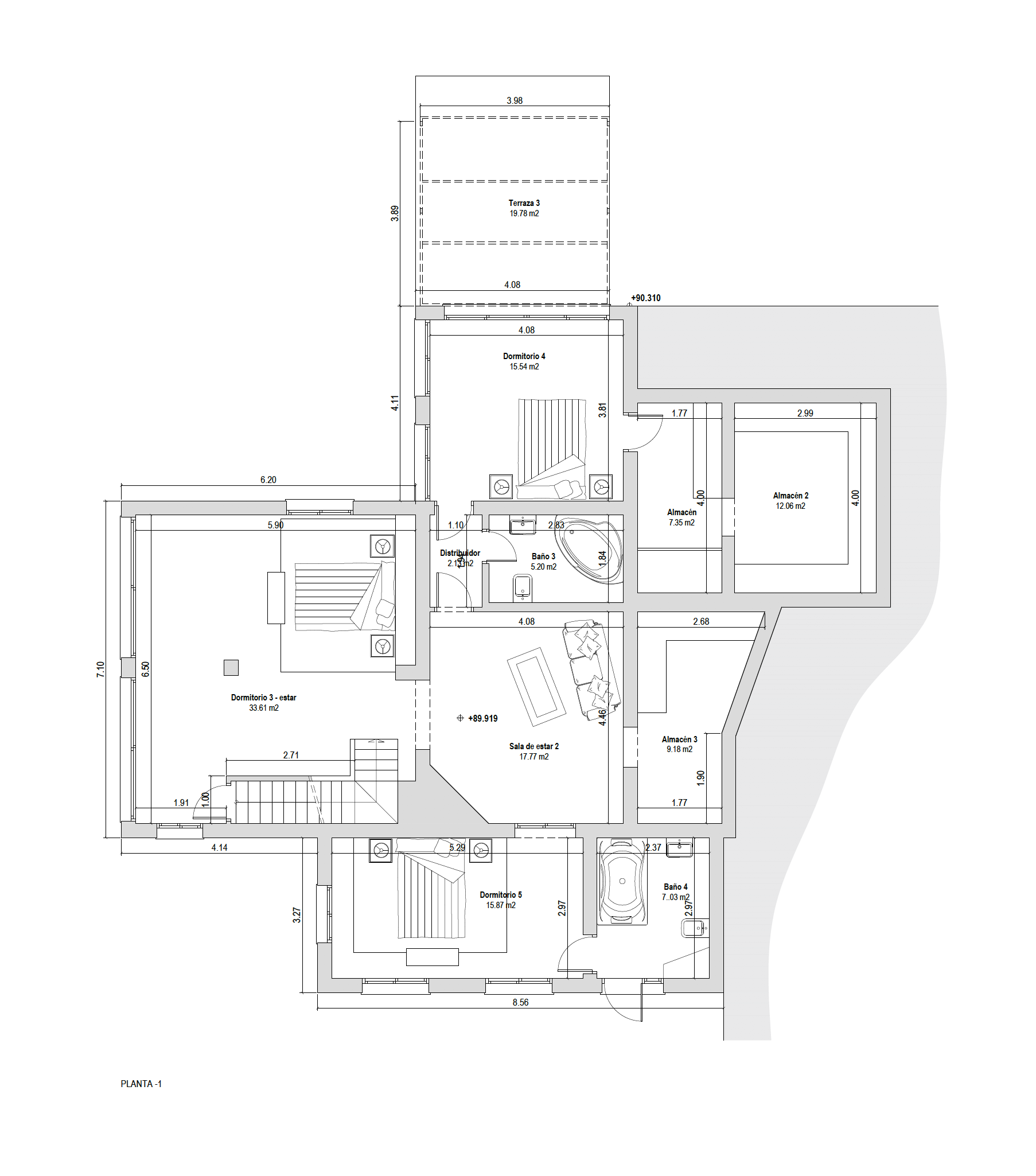
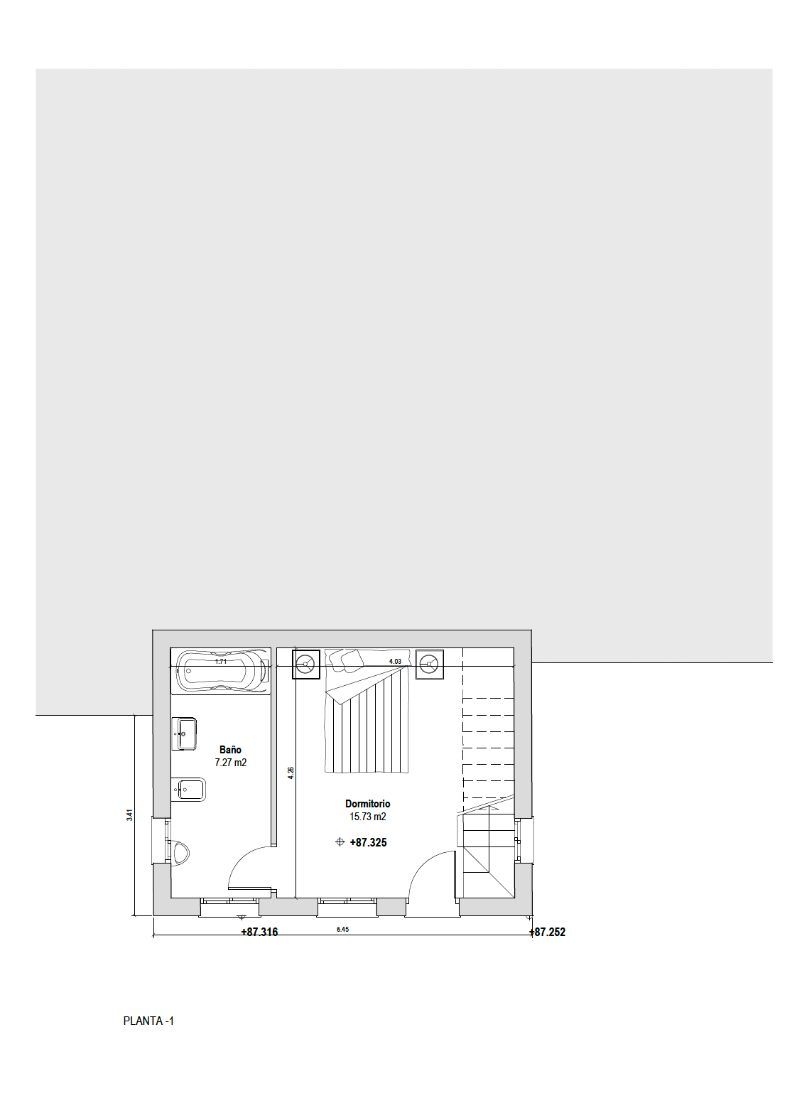
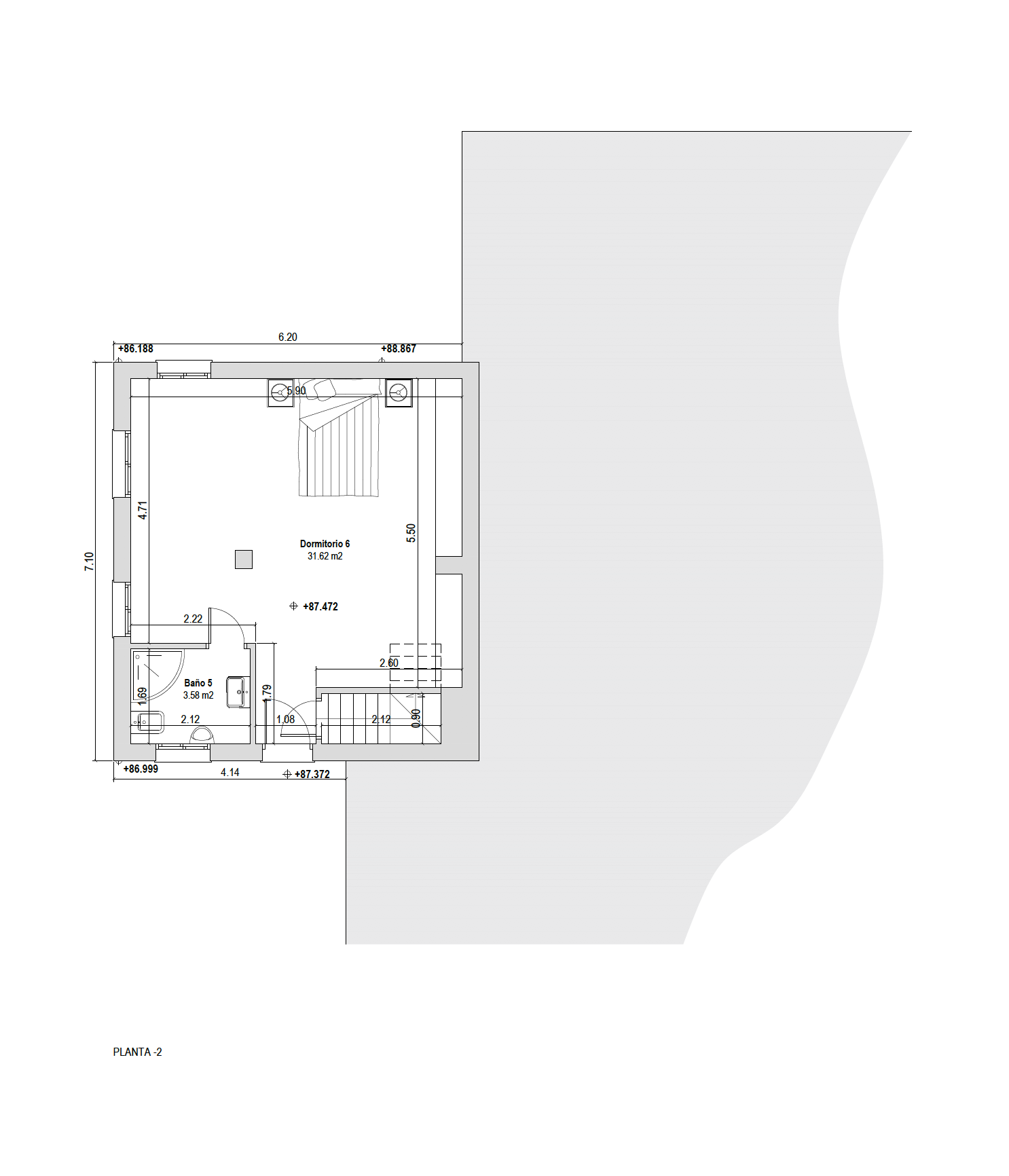
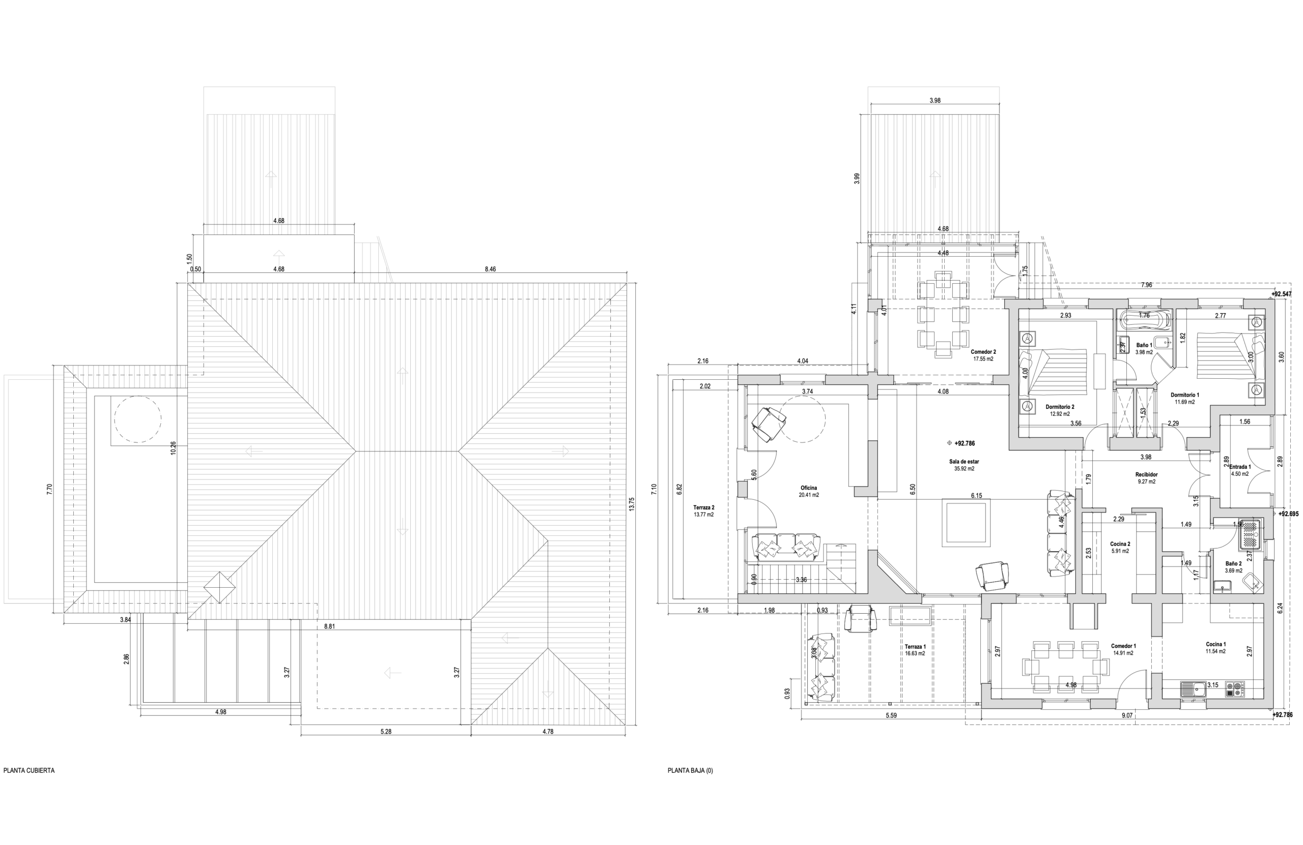
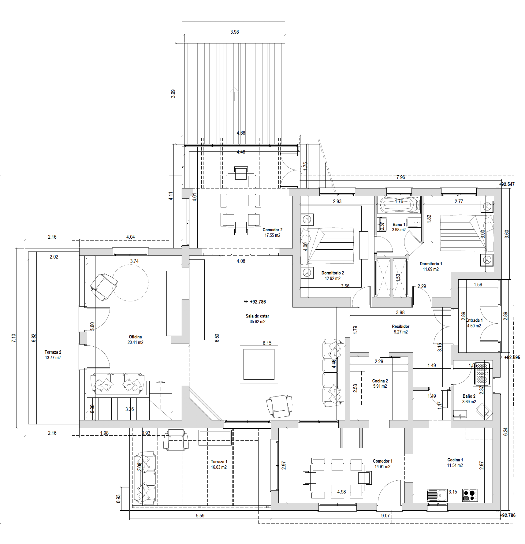
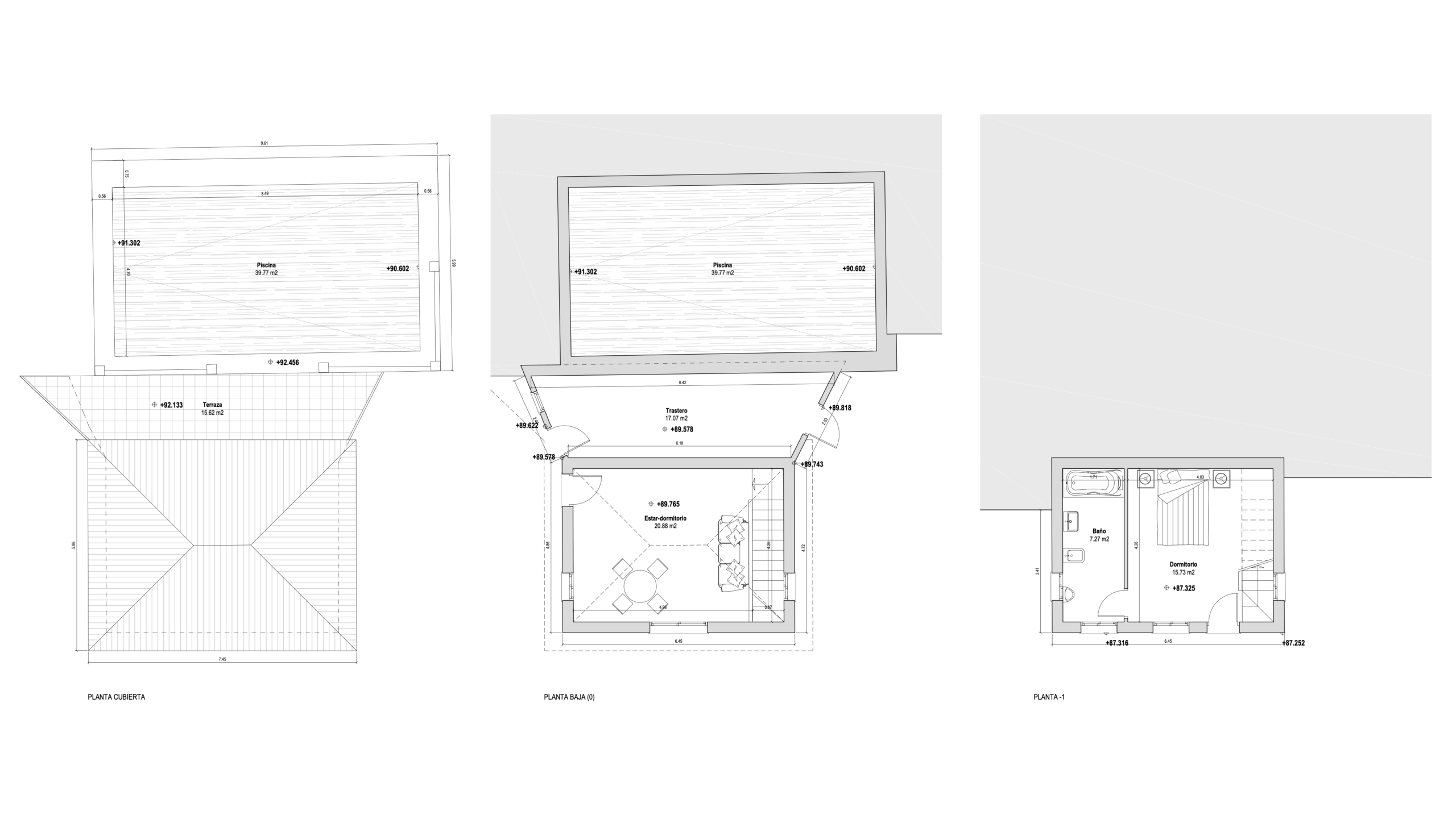
PLAN & SURFACE

Since 2019, the property has been operating as a rural accommodation, officially registered with the tourism authority, which also allows for extensions through a ‘development plan’, subject to municipal approval.
If the property is intended for accommodation, the building can be regularized, or even expanded, through a procedure called a "development project."
In principle, the operation of rural accommodation on rural land is permitted by regulations, without any construction restrictions.
The only condition is that the Benahavis Municipal Council deems the project to be in the public interest and authorizes it before issuing a building permit.
The applicable regulations are the General Regulations of the LISTA (Andalusian List of Rural Accommodation), specifically Articles 30 to 35. Articles 22 to 26 are also applicable.
Regarding hotel operations, the applicable regulations are Law 13/2011 on Tourism in Andalusia (Article 48), Decree 20/2002 of January 29 concerning tourism in rural areas (with annexes relating to technical requirements), and Decree 143/2014 of October 21 concerning the Andalusian Tourism Register (RTA), regarding the registration procedure.
March 2026 - An Architect/Urban Planner -
















